简介:
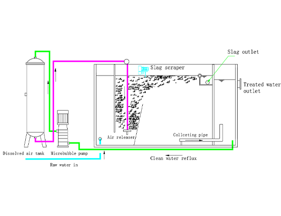
溶气泵在3.5~4bar 压力下将空气溶于清水中,含气的清水通过释放器时释放出来。由于突然减压,产生了大量的微气泡。这些微气泡与油、悬浮物等杂质粘在一起,然后通过微气泡的上升浮到水面,通过刮渣机移动到浮渣池,达到水质净化的目的。
应用:
去除炼油、油漆、轻工、洗衣印染、餐饮厨房废水、精细化工等废水中前后处理中的浮油和悬浮固体。

项目:新加坡樟宜车场洗车废水处理项目
系统工艺:
为波纹板澄清器(CPI)→ 溶气气浮池(DAF)→PH调节池→ 石英砂过滤→ 活性炭过滤。
主要去除废水中的悬浮物、油类及COD ,达到当地排放标准。
新加坡樟宜车场项目

