工程案例
当前位置:首页 > 工程案例

工程案例

联系我们Contact Us

广州市鹏康水处理工程有限公司

技术业务通道

联系方式:13318809114  

邮箱:mofei@gzpengkang.com

供应商通道
邮箱:pod@gzpengkang.com

污水项目工程案例:一体化溶气气浮处理装置

污水项目工程案例:一体化溶气气浮处理装置

  • 所属分类:工程案例
  • 浏览次数:
  • 发布时间:2025-10-13
  • 案例展示

简介:

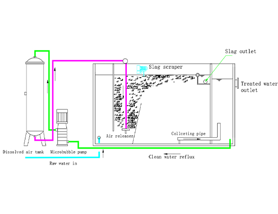
溶气泵在3.5~4bar 压力下将空气溶于清水中,含气的清水通过释放器时释放出来。由于突然减压,产生了大量的微气泡。这些微气泡与油、悬浮物等杂质粘在一起,然后通过微气泡的上升浮到水面,通过刮渣机移动到浮渣池,达到水质净化的目的。

应用:

去除炼油、油漆、轻工、洗衣印染、餐饮厨房废水、精细化工等废水中前后处理中的浮油和悬浮固体。


b0c75f191b83082241c129377a34e50b.jpg


项目:新加坡樟宜车场洗车废水处理项目

系统工艺:

为波纹板澄清器(CPI)→ 溶气气浮池(DAF)→PH调节池→ 石英砂过滤→ 活性炭过滤。

主要去除废水中的悬浮物、油类及COD ,达到当地排放标准。


新加坡樟宜车场项目


62a6c8edd9e5d0bf132ea463c811d232.jpg


1bfd524d5f372a38fd2600c335fc5566.jpg



 

下一篇:没有了